Résidence Les Terrasses de la Renaissance
Un projet unique au cœur de Tournai

Une architecture audacieuse et la plus belle vue de Tournai !

Parking à partir de 26.750 € HTVA et garage à partir de 35.000 € HTVA 

3 cellules commerciales disponibles (Vente CASCO)

Livraison estimée fin 2027

Vente sous Loi Breyne et régime des droits d'enregistrement (12,5 %) sur le terrain, éligible à 3 %, et de la TVA sur la construction (21 %)

PEB visé : A+ 

Surfaces brutes établies par l'architecte, l'entrepreneur ou le géomètre selon les cas































* Visuels non contractuels

Résidence Les Terrasses de la Renaissance

Prestations

Agencement : Hall, séjour avec cuisine ouverte, buanderie, WC séparé avec lave-mains, 1 à 3 chambres, salle de douche et ascenseur

Espaces extérieurs : Balcon, terrasse ou jardin selon les lots (hors lots 01, 02, 12, 17 et 22)

Confort et commodités : Panneaux solaires, volets roulants électriques au rez et dans les chambres

Espaces verts : Jardin commun

Finitions

Menuiseries : Châssis en aluminium double vitrage

Chauffage : Pompe à chaleur, chauffage par le sol, sèche-serviette dans les salles de douche

Ventilation : Ventilation simple flux type C+

Revêtements de sol : Carrelage + Carrelage imitation parquet ou parquet semi-massif dans les chambres selon les lots

Sécurité : Système de vidéophonie, accès parking sécurisé

Environnement

Au cœur de Tournai, au bord de l'Escaut

Face au Pont des Trous

Proche de toutes les commodités du centre-ville

Prix & Plans

*Surfaces brutes

Type Etg. prix
Commerces et bureaux
7046700
67.59 M²
Plan du lot
0 0 128 000 €
Rentabilité
Commerces et bureaux
7046699
100.88 M²
Plan du lot
0 0 182 000 €
Rentabilité
Commerces et bureaux
7046688
75.49 M²
Plan du lot
0 0 109 000 €
Rentabilité
Appartement
7046680
217.9 M²
Plan du lot
3 4 1 099 000 €
Appartement
7046679
183.2 M²
Plan du lot
3 3 820 000 €
Appartement
7046677
143.87 M²
Plan du lot
2 3 599 000 €
Appartement
7046674
121.96 M²
Plan du lot
2 3 435 000 €
Appartement
7046672
134.6 M²
Plan du lot
3 3 575 000 €
Appartement
7046671
113.79 M²
Plan du lot
2 3 445 000 €
Appartement
7046669
64.29 M²
Plan du lot
1 3 269 000 €
Rentabilité
Appartement
7046667
116.07 M²
Plan du lot
2 3 445 000 €
Appartement
7046664
182.82 M²
Plan du lot
3 2 750 000 €
Appartement
7046663
169.14 M²
Plan du lot
3 2 639 000 €
Appartement
7046662
121.96 M²
Plan du lot
2 2 469 000 €
Appartement
7046660
134.61 M²
Plan du lot
3 2 499 000 €
Appartement
7046659
112.09 M²
Plan du lot
3 2 399 000 €
Appartement
7046631
106.34 M²
Plan du lot
2 2 369 000 €
Appartement
7046629
70.56 M²
Plan du lot
1 2 239 000 €
Rentabilité
Appartement
7046625
139.55 M²
Plan du lot
3 2 475 000 €
Appartement
7046622
182.82 M²
Plan du lot
3 1 849 000 €
Appartement
7046621
186.82 M²
Plan du lot
3 1 845 000 €
Appartement
7046618
81.5 M²
Plan du lot
1 1 259 000 €
Rentabilité
Appartement
7046617
68.42 M²
Plan du lot
1 1 290 000 €
Appartement
7046615
151.29 M²
Plan du lot
3 1 643 000 €
Appartement
7046614
113.29 M²
Plan du lot
2 1 397 000 €
Appartement
7046610
110.34 M²
Plan du lot
2 1 415 000 €
Appartement
7046608
69.75 M²
Plan du lot
1 1 229 000 €
Rentabilité
Appartement
7046606
139.55 M²
Plan du lot
3 1 595 000 €
Appartement
7046605
73.36 M²
Plan du lot
1 0 209 000 €
Rentabilité
Appartement
7046535
118.93 M²
Plan du lot
2 0 299 000 €
Rentabilité
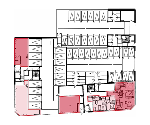
Survolez l'image et sélectionnez un étage/un lot pour visualiser les plans 3D.
Plan RDC R1 R2 R3 R4

Résidence étages

Contact

Découvrez les possibilités et les détails de la résidence. Matériaux plans précis cahier des charges...

Vous pouvez nous contacter par mail ou en utilisant le formulaire ci-contre.

Logo ImmoAplus